貸ビル市場 トップページ > 物件検索 > 貸倉庫:物件 No.11781 物件詳細

貸倉庫:物件 No.11781 物件詳細  

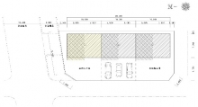
※画面をクリックすると拡大して表示されます。

物件ナンバー 11781
物件名 物件 No.11781
所在地 大阪府東大阪市
最寄り駅 JR 長瀬駅
階数 1-2階
坪数 33.4坪
保証金
(総額/坪単価)
2,200,000円 /  65,869円
賃料
(総額/坪単価)
275,000円 /  8,234円
共益費
(総額/坪単価)
 
建築概要 構造 鉄骨造
規模 2階建 竣工年 2022年9月
駐車場 あり エレベーター なし
空調 なし 使用時間

★駅徒歩圏、2方道路に面し大型車通行可の準工地域

☆1F倉庫21.17坪、2F事務所12.23坪

★3戸1の北角でP3台可

電話でのお問い合わせ:06-6223-5900

株式会社オーネットジャパン

  • 条件検索

    エリア
    広さ
    賃料
    エリアマップから探す
    検索する

    フリーワード検索

    検索する
  • 近畿圏の倉庫物件情報が満載
  • セールスポイントからお選び下さい
    ランドマークビルをお探しのお客様
    とにかくリーズナブルな物件をお探しのお客様
    駅近でアクセスが便利な物件をお探しのお客様
    弊社がオススメする特選物件情報
  • コンテンツメニュー
    運営会社
    よくある質問
    貸ビルオーナー様へ
    サイトマップ
  • 物件リクエストフォームはこちら