貸ビル市場 トップページ > 物件検索 > 貸倉庫:物件 No.09903 (貸倉庫) 物件詳細
貸倉庫:物件 No.09903 (貸倉庫) 物件詳細
| 物件ナンバー | 09903 |
|---|---|
| 物件名 | 物件 No.09903 (貸倉庫) |
| 所在地 | 京都府京都市伏見区 |
| 最寄り駅 | 近鉄 竹田駅 |
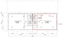
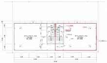
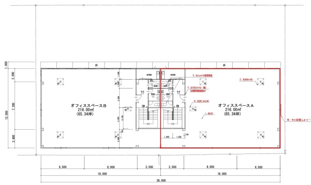
| 階数 | 1-2階 |
| 坪数 | 119.79坪 |
| 保証金 (総額/坪単価) |
16,800,000円 / 140,246円 |
| 賃料 (総額/坪単価) |
1,680,000円 / 11,521円 |
| 共益費 (総額/坪単価) |
















