貸ビル市場 トップページ > 物件検索 > 貸事務所:梅田清和ビル 物件詳細
貸事務所:梅田清和ビル 物件詳細


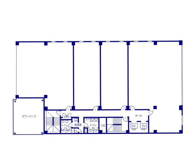
※画面をクリックすると拡大して表示されます。
| 物件ナンバー |
00147 |
| 物件名 |
梅田清和ビル |
| 所在地 |
大阪府大阪市北区芝田2−6−30 |
| 最寄り駅 |
地下鉄 梅田駅 |
| 階数 |
8階 |
| 坪数 |
42.05坪 |
保証金
(総額/坪単価) |
お問合せください |
賃料
(総額/坪単価) |
お問合せください |
共益費
(総額/坪単価) |
お問合せください |
| 建築概要 |
構造 |
|
| 規模 |
8階建 |
竣工年 |
1983年2月 |
| 駐車場 |
30台 |
エレベーター |
2基 |
| 空調 |
個別空調 |
使用時間 |
24時間対応 |