貸ビル市場 トップページ > 物件検索 > 貸事務所:淀川6番館 物件詳細

貸事務所:淀川6番館 物件詳細  

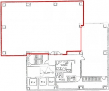
※画面をクリックすると拡大して表示されます。

物件ナンバー 00082
物件名 淀川6番館
所在地 大阪府大阪市北区豊崎3−1−22
最寄り駅 地下鉄 中津駅
階数 3階
坪数 82.3坪
保証金
(総額/坪単価)
お問合せください 
賃料
(総額/坪単価)
お問合せください 
共益費
(総額/坪単価)
お問合せください 
建築概要 構造 鉄骨造(鋼管コンクリート造)
規模 地下1階 地上14階建 竣工年 1993年5月
駐車場 26台 エレベーター 3基
空調 個別空調 使用時間 24時間対応

★大阪メトロ御堂筋線「中津駅」5分、阪急神戸線「大阪梅田駅」8分

☆機能性・スペックとも高水準を満たしたハイグレードビル一室!

★新御堂筋面す!全面東向き、眺望・採光◎!

☆天井高2.6m(床下OAフロア7cm)、立体駐車場完備、同オーナー所有の近接会議室施設利用可。

電話でのお問い合わせ:06-6223-5900

株式会社オーネットジャパン

  • 条件検索

    エリア
    広さ
    賃料
    エリアマップから探す
    検索する

    フリーワード検索

    検索する
  • 近畿圏の倉庫物件情報が満載
  • セールスポイントからお選び下さい
    ランドマークビルをお探しのお客様
    とにかくリーズナブルな物件をお探しのお客様
    駅近でアクセスが便利な物件をお探しのお客様
    弊社がオススメする特選物件情報
  • コンテンツメニュー
    運営会社
    よくある質問
    貸ビルオーナー様へ
    サイトマップ
  • 物件リクエストフォームはこちら